£265,000

1 bedroom Terraced House for sale

Coachmans Lane, Baldock.

  • Terraced House
  • 1 bed
  • 1 bath
  • 1 reception

Key Features

  • Ideal for first time or investment buyers
  • Private rear garden
  • Large double bedroom
  • Good order throughout
  • Off-street parking
  • Walking distance to local amenities
  • Close to A1M and transport links
  • Chain Free
  • Vendor will pay for the buyers solicitors fees!!!!
  • White goods included

Description

Front External

Small lawn area and space for refuse bins. Driveway for one vehicle, paved path and steps leading to uPVC front door with obscured glass insert. Entering into:

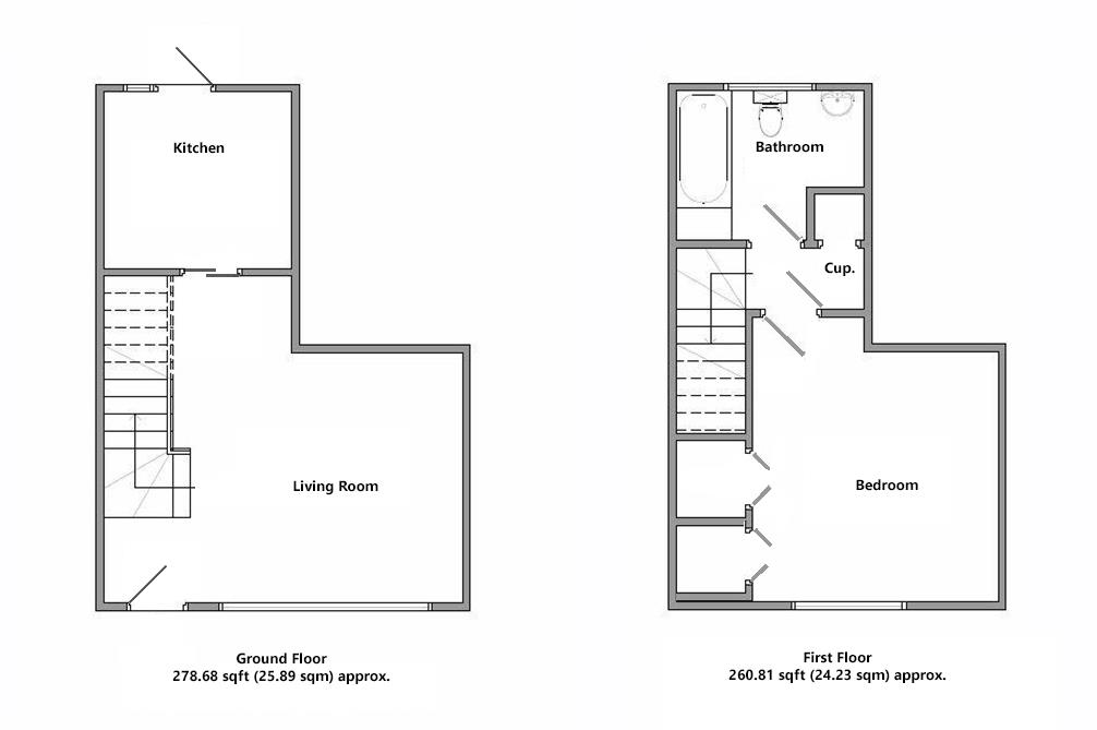
Living Room (4.68 x 3.77)

Fitted carpet, meter box, two light fittings, one radiator, thermostat. Half obscured glass glazed sliding door to:

Kitchen (2.45 x 2.30)

Vinyl flooring, range of wall and base units, tiled splashback around laminate worktops. Sink and drainer with mixer tap, one light fitting, space for fridge freezer, oven and plumbing for washing machine. Worcester combi boiler - serviced annually. Double glazed window to rear aspect, half double glazed door to rear aspect leading to garden.

Stairs and first floor landing

Fitted carpet, light fitting, loft access and large storage cupboard.

Bedroom (4.20 x 3.71)

Fitted carpet, light fitting, double glazed window to front aspect, radiator, fitted wardrobes.

Bathroom (2.45 x 1.95)

Vinyl wood effect flooring, white suite comprising low level dual flush wc, hand basin inset to vanity unit, bath with mixer tap and independent shower over, shower screen, light fitting, wall mounted vanity unit, radiator. Double glazed window with obscured glass to rear aspect.

Rear External

Patio area, security light, water tap, paved path down one side of lawn leading to patio area and large shed at rear of garden, mature bushes and gated rear access to path behind property.

Agents Notes

Boiler serviced annually
Loft has light, not boarded, no ladder
Council tax band - B (£1,790.95 p.a. subject to change)
The sale is being conducted on behalf of a member of iW Estates staff.


Location


Floorplan

Floorplan

EPC

EPC for Coachmans Lane, Baldock.

Call the Buntingford branch

01763 272391 Book a viewing Whats your home worth?

Buntingford Office

Stevenage Office