£525,000

3 bedroom Semi-detached house for sale

Fairfield, Buntingford

  • Semi-detached house
  • 3 bed
  • 1 bath
  • 1 reception

Key Features

  • Sought after location
  • Close to schools and High Street amenities
  • 3 generous double bedrooms
  • Refitted downstairs cloakroom
  • Bright and spacious 'L' shaped reception
  • Perfect for growing families
  • Potential for extension into loft space
  • Driveway for 3 vehicles
  • Beautiful mature south facing rear garden
  • Peaceful, well-regarded family estate

Description

Entrance

Storm porch with solar and mains lighting, uPVC front floor with obscure glass

Entrance Hall

uPVC obscure window to front aspect, light fitting, radiator, storage cupboard, fitted carpet. Door to:

Cloakroom

Refitted white suite comprising low level dual flush w/c, vanity unit, handbasin with mixer tap, uPVC window with obscure glass to front aspect, radiator, half tiled walls, tiled flooring, light fitting

Lounge/Dining

'L' shaped living/dining. TV point, 2 radiators, fitted carpet, light fixtures. uPVC French doors with side panels to rear aspect, uPVC double window with side and top opening to rear aspect. Door to:

Kitchen

Tiled flooring, light fixture, storage cupboard, 'Stoves' range double oven and grill with 7 ring gas hob, 'Smeg' extractor fan over cooker. Range of cream wall and base units, dark grey quartz worktops, serving hatch through to dining area. uPVC window to side aspect, half tiled walls, one and a half sink with mixer tap, plumbing for dishwasher. Archway to:

Utility Room

Vinyl flooring, double glazed window to rear aspect, dual aspect double glazed doors leading to side access and rear garden. Plumbing for washing machine, space for tumble dryer, range of white wall and base units, radiator and ceiling hatch into storage. Internal door to:

Garage

Lighting, boiler, electrical box, space for 1 car, white up and over door.

Landing

Fitted carpet, half turn staircase, storage cupboard, access to fully boarded loft. Door to:

Bathroom

White suite comprising vanity unit hand basin with mixer tap, bath with mixer tap and hand held shower and screen; dual flush low-level w/c. Separate tempered glass shower unit with wall mounted shower and white soak away tray. uPVC window with obscure glass to front aspect, radiator, fully tiled walls, vinyl flooring.

Bedroom One

Generous double bedroom, fitted wardrobes, uPVC window to rear aspect, TV point, radiator, fitted carpet

Bedroom Two

Generous double bedroom, uPVC window to rear aspect, radiator, fitted carpet

Bedroom Three

Double bedroom, uPVC window to front aspect, radiator

Garden

Raised grass area, mature boarders, bushes and flowering plants. Patio wraps around rear and side with space for seating, light fixtures to sides of rear French doors.

Front External

Brick laid driveway with parking for 3 vehicles, gated side access.

Agents Note

Boiler situated in the garage - serviced annually
Loft fully boarded with ladder and light
Council tax band E - £2,859.14 p.a. (Subject to change)


Location


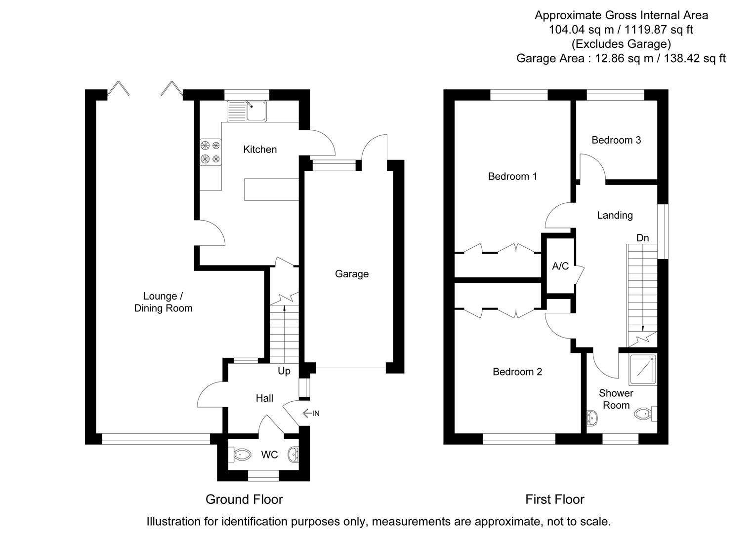
Floorplan

Floorplan

EPC

EPC for Fairfield, Buntingford

Call the Buntingford branch

01763 272391 Book a viewing Whats your home worth?

Buntingford Office

Stevenage Office